This Ingenious Duplex multipoint door lock features 5 Hooks & 1 Latch.
These locks are designed for use on composite doors and feature a 20mm faceplate.
Identifying an Ingenious lock is relatively straightforward, but there are a few pitfalls. If your lock is still in the door, it’ll likely have the brand stamped on the faceplate. Some models also have the Secured By Design logo stamped on the faceplate too. You can double check by looking for a small black snib below the latch. Other manufacturers, such as ERA and Kenrick, also feature a holdback snib on the latch, so the snib isn’t a guarantee. All Ingenious locks feature a central hook that throws downward, rather than a deadbolt.
We’d always recommend removing the multipoint from the door to help identify it. This is especially important if you can’t identify the brand from the faceplate or it has been rebranded.
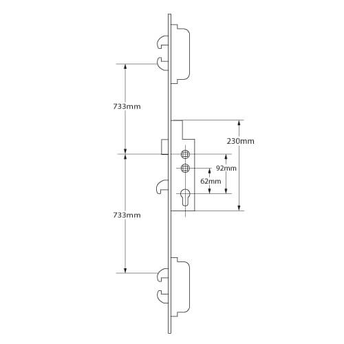
Ingenious gearboxes have a distinctive double spindle arrangement with centres at 62mm and 92mm. Both followers are unsprung so we’d recommend the use of sprung door furniture. The top corner of the gearbox is also cut out.
The overall height is 230mm and they are fixed to the faceplate with 3 screw holes. The top screw hole to the middle screw hole is 110mm and the middle to the bottom is 108mm.
Both the hook and the latch (which features a screw) are 30mm high and the distance between them is 75mm.
When measuring the backset, allow 2-3mm for the faceplate, so a 35mm backset gearbox will measure 32mm when not fixed to the strip.
Ingenious multipoint door gearboxes feature a small, plastic snib on the faceplate. This can be used to hold the latch back for convenience and to prevent accidental lock outs.
Ingenious gearboxes do bear a resemblance to the Fullex XL series (which are also 230mm), so to double check, we recommend comparing the hook boxes against the pictures as they are distinct.
Ingenious locks feature a couple of different hook locking arrangements.
The first is a standard hook which normally throw upwards, regardless of whether the hook is at the top or the bottom of the door.
The second type of hook is the Duplex, which is higher security. Duplex locks feature a pair of cast zinc hooks that throw towards each other and resemble a crab’s claws. The Duplex locks feature a larger hook case than the standard hooks, so if you are upgrading and the routing on the door is tight, the hook box holes may need to be enlarged.
Operation: Double Spindle
To lock the door
1. On closing the door, the latch is automatically engaged.
2. Lift the handle up to engage the locking points.
3. Lock the system by turning the key.
To unlock the door
1. Unlock the system by turning the key.
2. Push the handle downwards to disengage the locking points.
3. A further quarter turn of the key will retract the latch.
We stock a range of associated products for Ingenious Duplex multipoint door locks, including keeps, spindles, handles and accessories.
Latch Reversal:Latch reversal: Undo the screw in the latch to remove. Reverse and reinsert then replace screws.
You may find this lock used as a timber door lock or a composite door lock.
Reviews
There are no reviews yet.